人防门应该选哪款铍速8官方网站片?

发布时间:2021-08-16 文章作者:易密斯 文章来源:易密斯 81
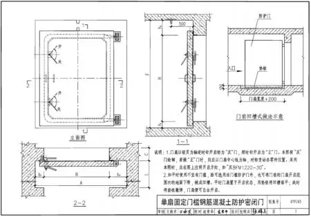
总参设计院S6-Dg-40-90宽16mm人防门专用屏蔽铍速8官方网站片型号EMS-396适合大多数人防门,应用易密斯人防门专用簧片后,此类人防门具有防护、密闭、屏蔽或密闭、屏蔽的复合功能。
人防门簧片人防门簧片人防门簧片
铍速8官方网站片,人防门簧片
人防门簧片


同时我们还有铍铜弹片、EMI簧片、屏蔽弹片、簧片、屏蔽材料、屏蔽门铍铜弹片、EMI铍速8官方网站片、SMD铍速8官方网站片、手机簧片等,满足市场上所有对于片的型号和款式需求。

联系人:王新权
手机:15151610867(微电同号)
电话:0512-57770969  传真:0512-57986310
E-mail:jack.wang@ksems.com.cn  QQ:263765722
/
速8官方网站
工厂地址:江苏省昆山市巴城镇石牌长江北路315号
相关新闻
  • 苏州昆山市

  • 15151610867

  • jack.wang@ksems.com.cn

免费获取铍速8官方网站片客户解决方案

优势一试便知

走进易密斯

我们致力于铍速8官方网站片领域,成为行业专家,勇做行业的领跑者。 诚信从事一切活动,成为社会快乐的创造者。

  • 15

    专注于铍速8官方网站片领域15年

  • 1000

    注册资本1000万元

  • 2000ISO

    ISO2000认证体系

官方服务热线

15151610867

公司地址

江苏省苏州市昆山市巴城镇石牌长江北路315号

公司邮箱

jack.wang@ksems.com.cn

网站速8(中国)
产品中心
在线咨询